главная  |  архитектура  ландшафт  дизайн  |  инфо
 
 
   
 
 
САД в "MV house"

2024
Благоустройство и озеленение частного участка
2020 м2
Москва, поселение Сосенское, коттеджный посёлок «СИНЕРГИЯ»

 

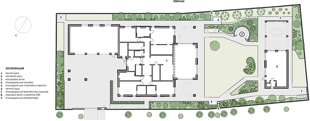
Проект предусматривает комплексное благоустройство и озеленение территории. В состав функционального деления участка входят: входная зона, центральный сад, костровая зона, площадка для гамака, площадки для скамеек и кресел, плодовый сад и техническая зона.
Зелёные насаждения равномерно распределены по периметру участка, формируя естественные границы и создавая приватную атмосферу. Дорожки связывают все функциональные зоны, обеспечивая логичную навигацию по территории. Открытые пространства чередуются с озеленёнными участками, создавая баланс между рекреационными и природными зонами. В основных просматриваемых зонах и зонах отдыха открываются лучшие виды на участок и озеленение.
Генплан демонстрирует организацию загородного участка, сочетающую функциональность, эргономику и эстетику. Планировка обеспечивает комфортное проживание, возможность отдыха и эффективное использование территории.

 
 
 
 
 
 
 
 
 
 

 

 
 
 
 
 
 
 

главная  |  архитектура  ландшафт  дизайн  |  инфо

 

MINIDEA студия архитектуры и дизайна.
+7-916-145-7317 
minidea@mail.ru
telegram |
facebook  | 
вконтакте   instagram |

Москва, Россия.