главная  |  архитектура  ландшафт  дизайн  |  инфо
 
 
   
 
 

VERY «ММ»
2025
Дизайн интерьера в ЖК “
Very
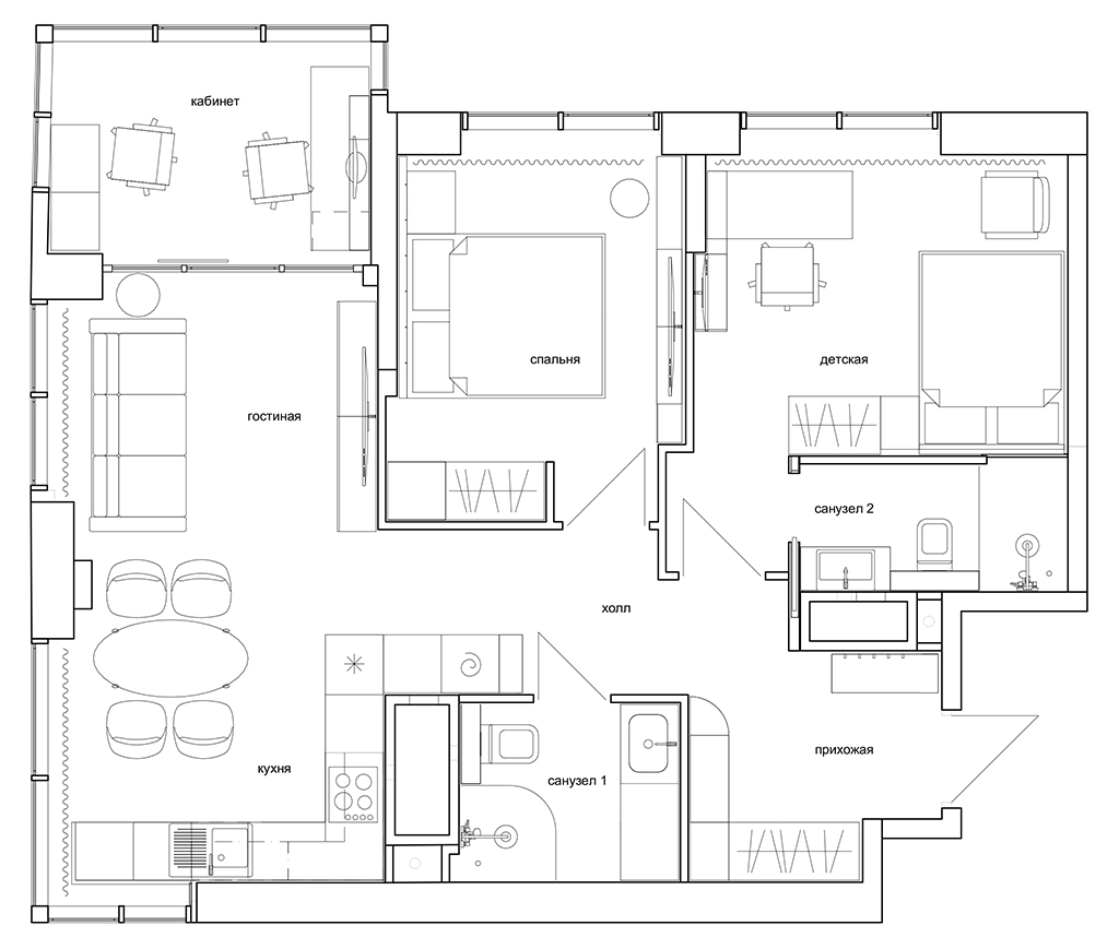
74 м2
г. Москва, ул. Миклухо-Маклая, 23

 

Проект интерьера квартиры выполнен в современном стиле с элементами тёплого минимализма. Доминируют нейтральные оттенки: бежевый, белый, светло-коричневый — создающие спокойную, светлую атмосферу. Мебель отличается простыми геометрическими формами и функциональностью.
Фактуры материалов разнообразны, но сдержанны. Матовая поверхность стен и мебели сочетается с более выразительной текстурой керамогранита и паркетной доски. Большие окна усиливают ощущение простора и наполняют помещение естественным светом.
В планировке, кроме прочего, учтены пожелания актуального технического оснащения и максимального использования возможностей хранения. Интерьер выглядит упорядоченным, но не стерильным за счёт тёплых оттенков и натуральных материалов.

 
 
 
 
 
 
 
 
 
 
 
 
 
 
 

главная  |  архитектура  ландшафт  дизайн  |  инфо

 

MINIDEA студия архитектуры и дизайна.
+7-916-145-7317 
minidea@mail.ru
telegram |
facebook  | 
вконтакте   instagram |

Москва, Россия.