главная  |  архитектура  ландшафт  дизайн  |  инфо
 
 
   
 
 

VERY «БОТАНИЧЕСКИЙ САД»
2025
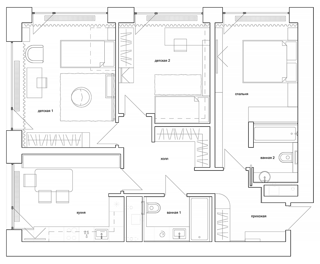
Дизайн интерьера в ЖК Very
92
м2
г. Москва, ул. Ботаническая, 29к1

 

Проект интерьера квартиры для семьи с двумя детьми выполнен в современном стиле с элементами скандинавского дизайна.
Пространство выглядит светлым и воздушным благодаря использованию натуральных материалов и нейтральной цветовой палитры.
В отделке интерьера используется паркетная доска, керамогранит, пробка, штукатурка и зеркала.
Освещение в интерьере играет важную роль. Встроенные потолочные светильники, трековые шины, подвесные лампы с декоративными элементами, настенные светильники и скрытая
led
-подсветка создают различные сценарии освещения.
Естественный свет проникает через большие окна, визуально расширяя пространство.
Мебель минималистична и функциональна. В отделке фасадов используется натуральный шпон и эмаль.
Этот интерьер идеально подходит современной семье, отражает принципы минимализма, где каждая деталь продумана для создания комфортного и эстетически привлекательного пространства.

 
 
 
 
 
 
 
 
 
 
 
 
 
 
 
 
 
 

главная  |  архитектура  ландшафт  дизайн  |  инфо

 

MINIDEA студия архитектуры и дизайна.
+7-916-145-7317 
minidea@mail.ru
telegram |
facebook  | 
вконтакте   instagram |

Москва, Россия.