главная  |  архитектура  ландшафт  дизайн  |  инфо
 
 
   
 
 
Банный клуб ШАРГОРА
2023
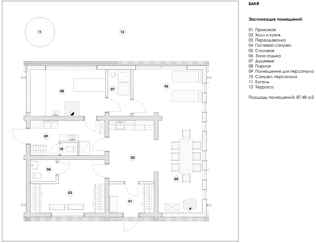
Реконструкция бани
87,48 м2
Псковская область, Пушкиногорский район, деревня
Шаробыки, ул. Приозерная, д. 11, берег озера Шаробыкское

Сайт банного клуба: https://shargora.ru/
 

Проектом предусматривается реконструкция существующего деревянного здания с трансформацией в современную баню, органично сочетающую в себе эстетику русского стиля и актуальные архитектурные решения. Проект закладывает основу для комплексной застройки территории будущей базы отдыха.

Экстерьер выполнен в лаконичном стиле. Чистые линии и отсутствие избыточного декора подчёркивают современность объекта и задаёт стилистическую канву для дальнейшего развития архитектурного облика всей территории.
Основные материалы, используемые в проекте: дерево, включая старинные амбарные доски, штукатурка с эффектом мазанки, керамическая плитка ручной работы.

Интерьер представляет собой тонкую интерпретацию русского усадебного стиля. Ключевой принцип — баланс: уважение к традициям без погружения в стилистический китч. Пространство наполнено атмосферой уюта и аутентичности, но остаётся актуальным и функциональным.
В декоре присутствуют резные наличники, старинные предметы деревенского быта, керамические изделия и текстильные изделия.

Проект демонстрирует, как традиционные культурные коды могут быть переосмыслены в контексте современной архитектуры. Здесь нет прямого цитирования исторических образцов — вместо этого создана авторская интерпретация, где русская эстетика становится не декоративным элементом, а смысловым ядром.

 
 
 
 
 
 
 
 
 
 
 
 
 
 

 
 
 
 
 
 
 
 
 
 
 
 
 
 
 
 
 
Проект выполнен для проектного бюро AES: www.archeco.space
 
 
 

главная  |  архитектура  ландшафт  дизайн  |  инфо

 

MINIDEA студия архитектуры и дизайна.
+7-916-145-7317 
minidea@mail.ru
telegram |
facebook  | 
вконтакте   instagram |

Москва, Россия.